Så tager det form
22052026

Så er der ly fra vestenvinden
Så er der noget af den første væg i vestsiden.

Flere har undret sig !
Skal der ikke isolering i gulvet ?
Ved samtale igår kom der en for mig ubekendt og “blande sig” i vores undren.
Han informerede os om at det nuværende gulv er midlertidig – fjernes senere og isolering lægges ned/på plads, og blivende gulv etableres.
Nu er grundplan til at genkende

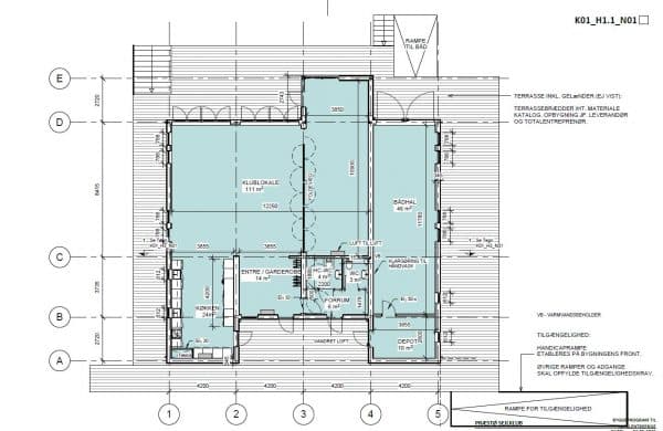
Lidt byggetegning og foto analyse
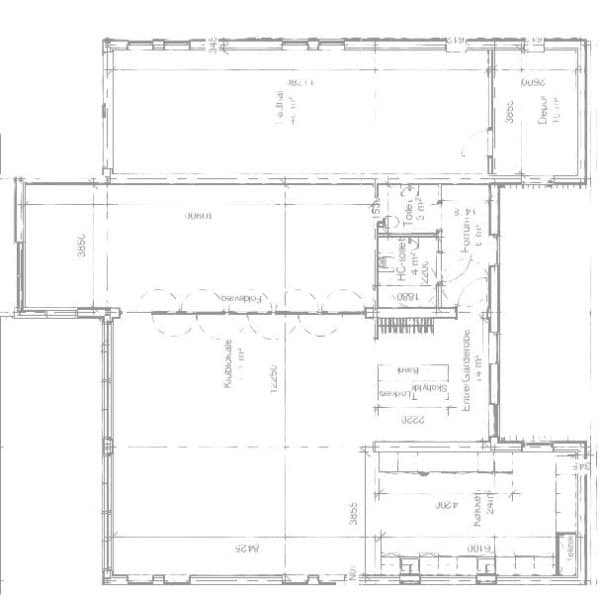
Her er den originale grundtegning


Og her et billede af opmåler pinde, som ikke giver forestilling om hvordan klubhus ligger

For at hjælpe lidt på opfattelsen har jeg lige vendt grundtegning og fjernet lidt skravering og tegnet grundris op på foto.




